Чернівці, Україна
Категорія:
Житло
3



Юрій Глобчак
Засновник студії Globarch Group
Наш дизайн задля ваших емоцій
Галерея

Про проєкт
Вирішення оздоблення будинку полягала з вибору природних фактур матеріалів, які гармонійно вписуються в навколишнє средовище місцевості. Дане вирішення фасаду розділене на два види: 1-ий поверх – фіброцементні плити, що надають фактуру монолітного сірого бетону; 2-ий поверх – зашивка вентильованого фасаду термодошкою; також фрагментне оздоблення гебіонами.
Площа вікон по відношенню до стін будинку є більшою від середнього показника нормативного, при цьому використані енергоефективні віконні системи. Висока енергоефективність будинку виконана за рахунок зовнішніх стін енергоефективного матеріалу – паротерм та утеплений мінеральною ватою з зовнішнім оздобленням навісним фасадом. Використовуються системи рекуперацій, система теплового насосу.
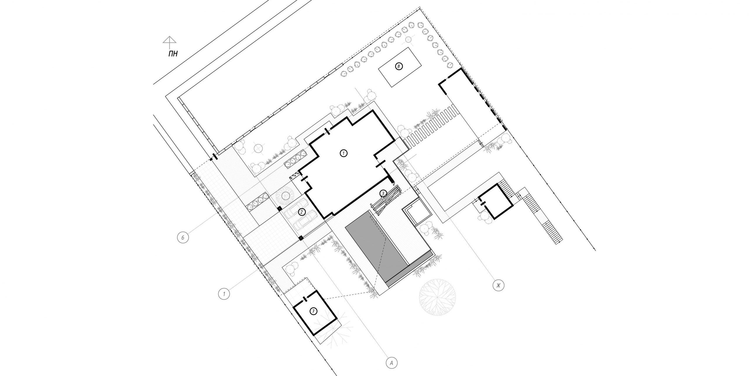
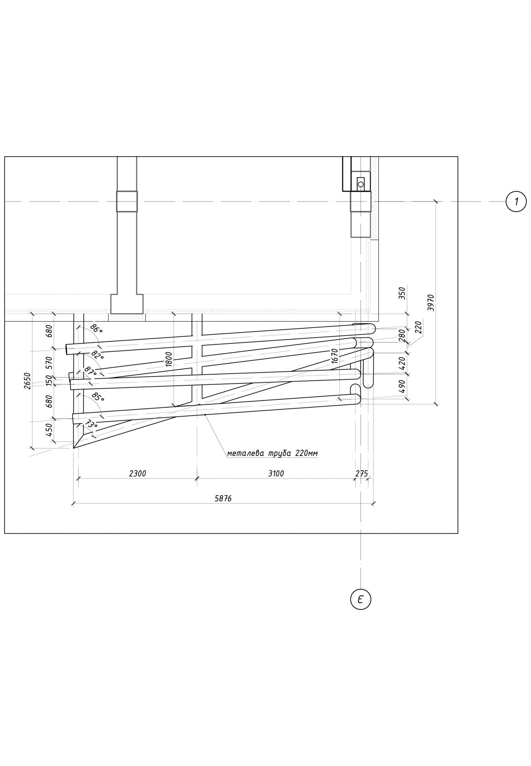
Перед урвищем вписаний басейн, оздоблений сланцем. Також є декоративний елемент із формою ламаних труб, які асоціюються із ростом дерева. Елемент виступає у ролі накриття, а також на нього можна підвішати гамак для проведення часу на вулиці.
Місцезнаходження
Ділянка під будівництво знаходься за містом Чернівці у населеному пункті Валя Кузьміна. Даний будинок розташований на краю прірви ділянки в лісовій зоні. Для архітекторів в свою чергу було поставлено надскладне завдання – спроєктувати житло у мінімалістичному стилі, де всі вікна орієнтуються на ліс, на величезній ділянці зі складним рельєфом.
При головному вході є дерево, яке виступає своєрідним акцентом ділянки. Ідея полягала в тому,
що ми не руйнуємо природу, а вписуємо будинок у природнє середовище.
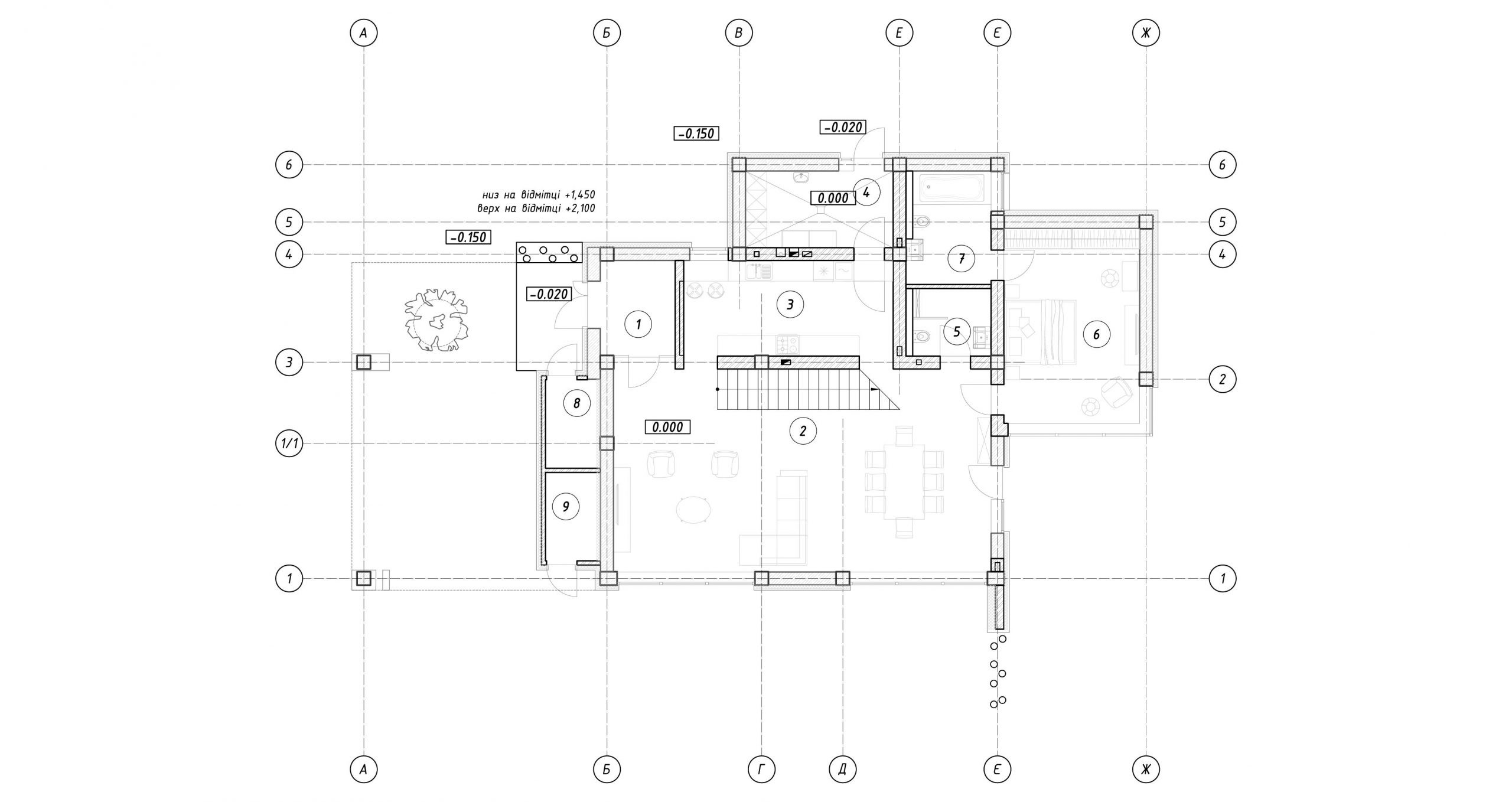
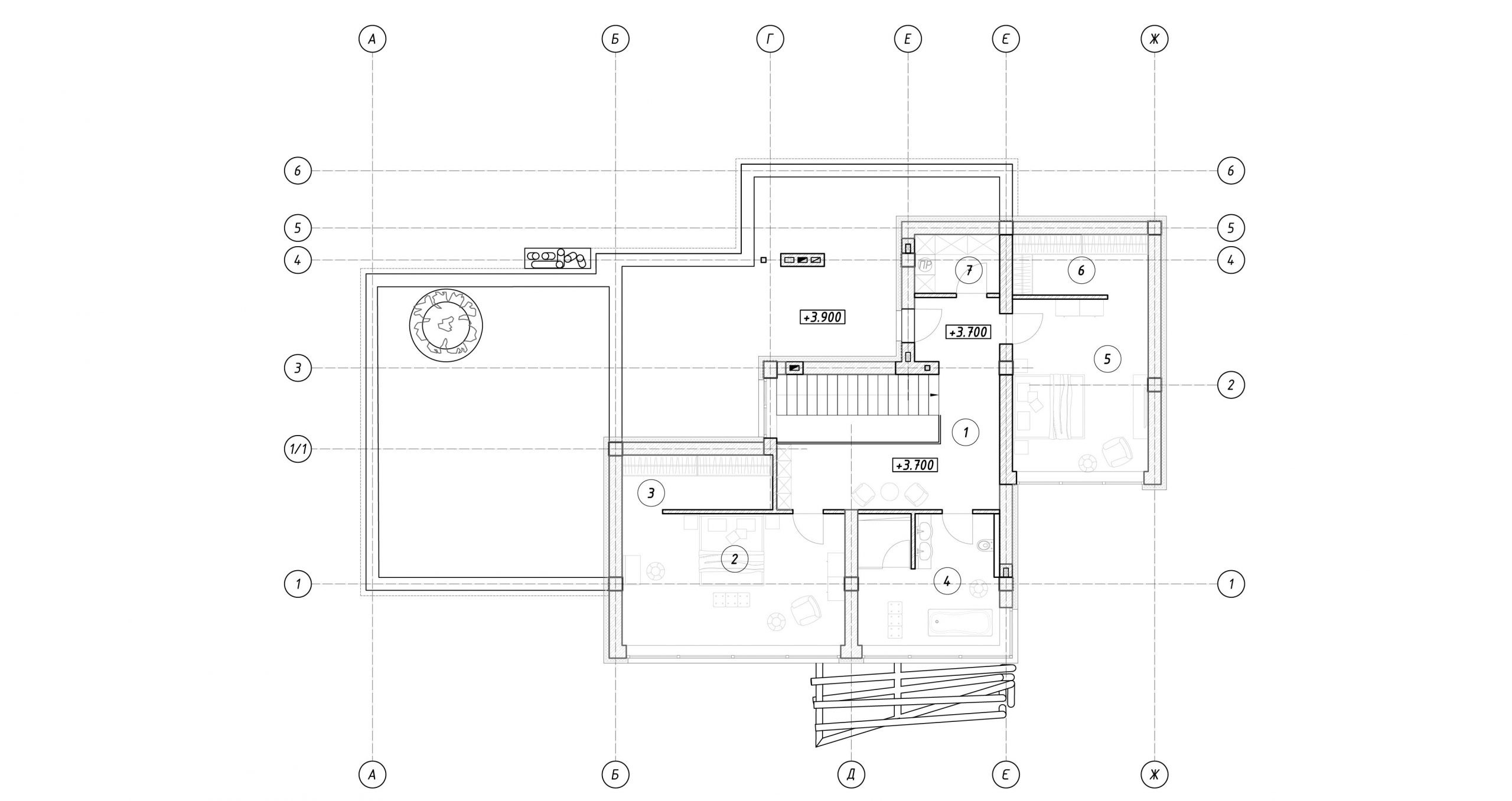
Архітектура
Техніко-економічні показники: площа ділянки під забудову – 1375,7 м², площа забудови – 234,8 м², площа замощення – 350,6 м², площа озеленення – 790,3 м²
Матеріали фасаду: обличкування стін фіброцементними плитами Swisspearl Vintago “Avera AV060”, габіони, зашивка фрагментами дошок (термососна), віконний алюмінієвий профіль (колір антрацит), двері дерев’яні, металеві труби з пофарбуванням по RAL9011, металевий каркас поручнів, скляні получні, сланцовий камінь чорний, керамограніт GOLDEN TILE HYGGE темно-сірий N4П510.
Пасхалки
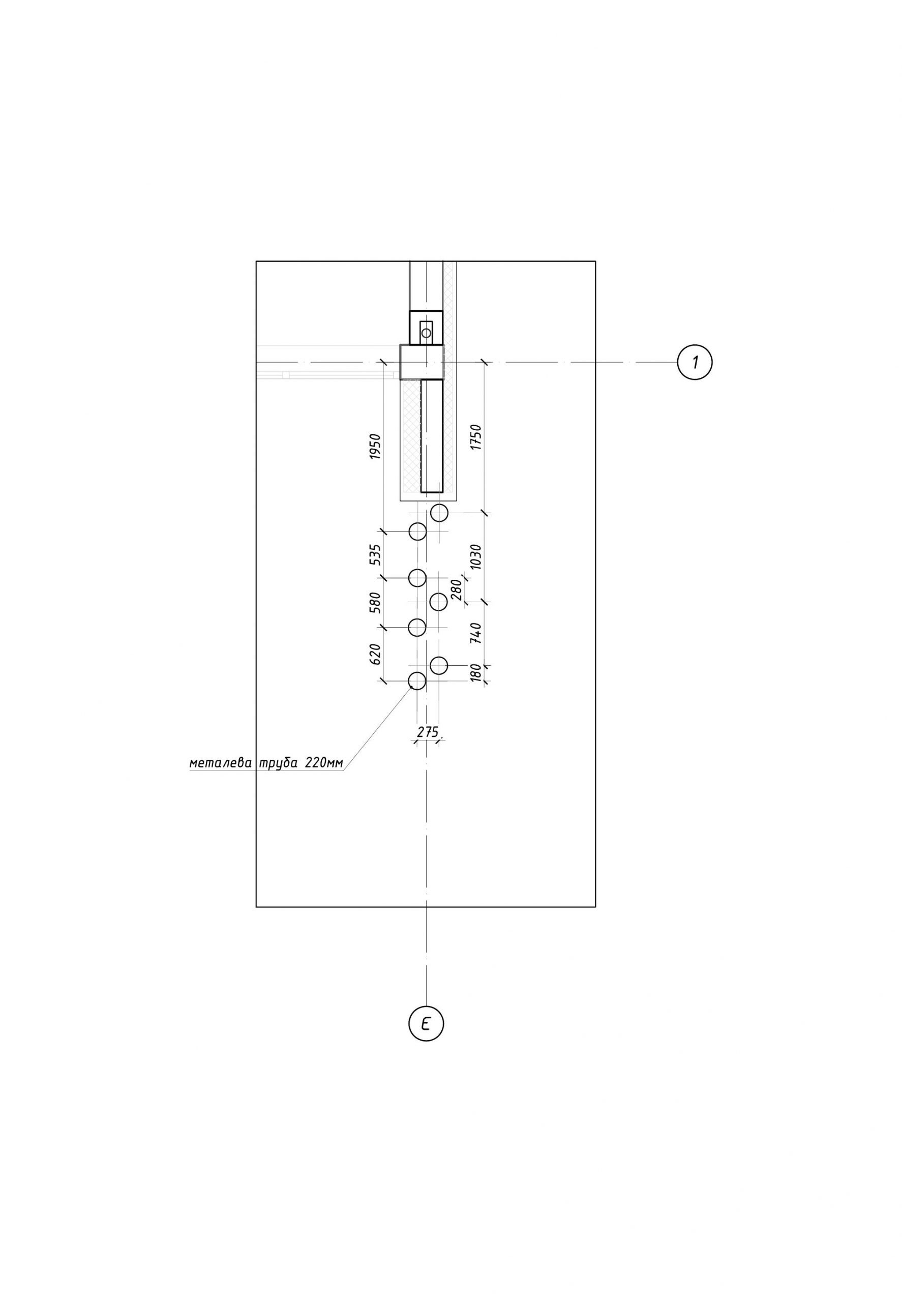
Металеві труби символізують стовбури дерев. Їх виконано з металевих пустотілих труб круглого січення. Також сама конструкція несе як естетичне, так і функціональне призначення. Горизонтальні елементи функціонують як перголи, так і несуча конструкція для підвісного гамака.
Команда
Юрій Глобчак, Євген Лучик, Юрій Мелота












