Солонка, Україна
Категорія:
Житло
1



Юрій Глобчак
Засновник студії Globarch Group
Наш дизайн задля ваших емоцій
Галерея

Про проєкт
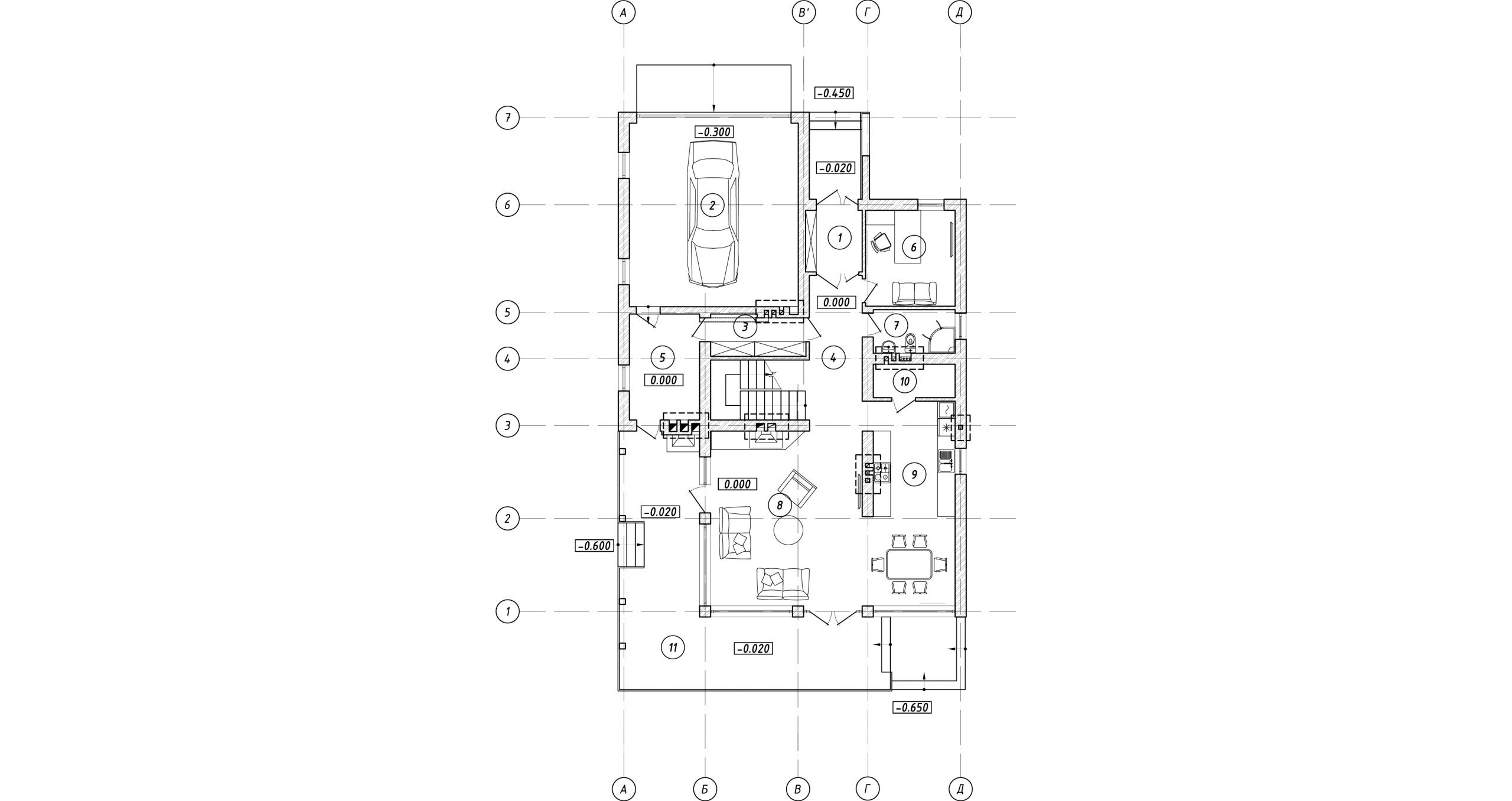
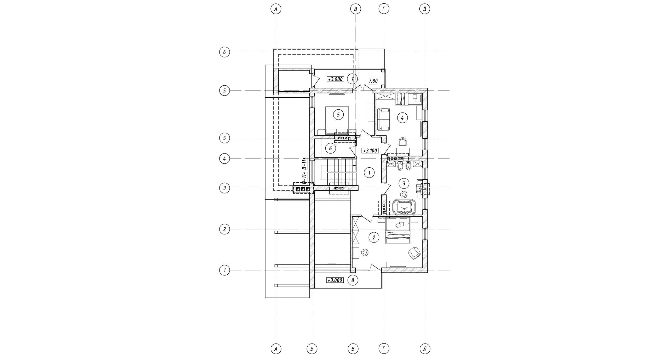
Будинок є одноповерховим з мансардним поверхом прямокутної форми. Форма даху є максимально простою двоскатною. Це дало можливість виконати непрості рішення: влаштування дахових вікон з переходом на стіну, що візуально збільшує освітлення мансардного поверху.
Будинок має велику криту терасу з можливістю входу з кухні та вітальні. Також будинок має два балкони, які межують із спальнями. Будинок має великий гараж на два місця для машин.
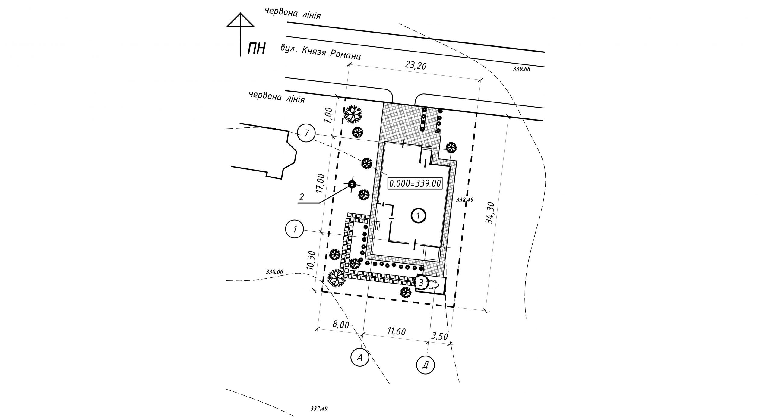
Місцезнаходження
Знаходить в межах міста Львова, рельєф ділянки пологий.
Архітектура
Техніко-економічні показники: площа ділянки – 798,50 м², площа забудови – 229,79 м², площа замощення – 128,70 м², площа озеленення – 440,10 м²
Основним матеріалом оздобленням будинку є фальцева крівля, яка з даху переходить на стіни.
Пасхалки
Родзинкою будинку є переходи з даху на стіни.
Команда
Юрій Глобчак












