Львів, Україна
Категорія:
Ресторан
4
Hamily Group



Юрій Глобчак
Засновник студії Globarch Group
Наш дизайн задля ваших емоцій
Галерея

Про проєкт
Ми вперше використали паротерм в інтер’єрі. Це кропітка робота по коректній викладці паротерму, так як він не є оздоблювальним матеріалом. І нами це вдалося, цей природній матеріал додав свою унікальну геометрію. Так як висота інтер’єру близько 5 метрів, це дозволило поставити дерева між столами, що додало затишку і прозонувало посадкові місця. Центральна частина обкладена килимом з мозаїки з інтерпретацією свинок. Всі меблі індивідуального виготовлення.
Увесь декор: бочки, діжки, глечики, дзеркало – це реставровані автентичні елементи української культури. Позаду дерев’яних стелажів є вікна, яких закрили дошками. Через них пробивається природнє світло, яке додає цікавий світловий ефект у підсвічуванні глечиків. По периметру закладу нанесений розпис стилізованого елементу трипільської культури.
Велика барна стійка викладена комірками з гебіону, полички декоровані автентичними глечиками та декором імітацією ребер. Також є фрагмент барного столу стилізованого корита. Стільниці столів тонкі і зроблені з фрагментів дошок. Також є зона з великими плетеними світильниками, на стіні від яких створюється цікава гра світла і тіні.
Також тут є різні зони з різними посадками, що дає можливість вибрати оптимальне місце як одинакам, так і великим компаніям. На стелі дерев’яні фальш балки та зашивка дошкою. Декорували зеленню та декоративним освітленням (вуличні гірлянди), що додало затишку.
Місцезнаходження
Ресторан знаходиться на третьому поверсі торгового центру “Шувар” у місті Львів.
Ми завжди шукаємо і розкриваємо потенціал приміщення ,так як тут є достатня висота та доступ до відкритої тераси, що є вищою за відмітку поверху, це дало нам змогу зробити подіум, що є функціональним та естетичним рішенням для цього простору.
Дизайн
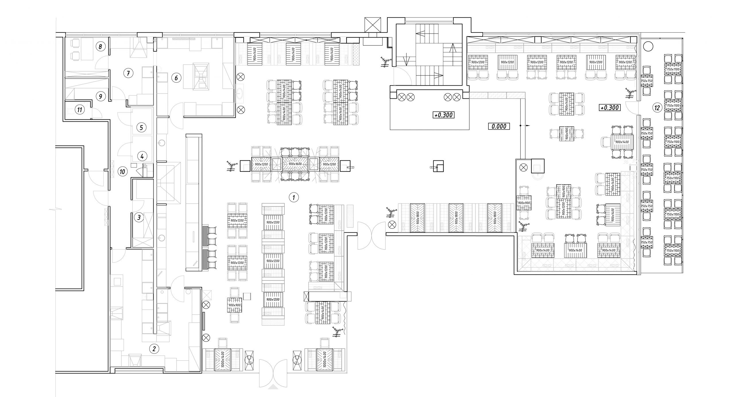
Загальна площа ресторану – 529,4 м², з них на бар-зал відведено 426,8 м². Кількість посадкових місць – 177. Також з тераса з площею 37,4 м² і кількістю посадкових місць 34.
Більшість елементів – індивідуального виготовлення.
Пасхалки
Ресторан “Rib’s House” більше спрямований на м’ясні страви, а також в емблемі логотипу є мордочка свинки. По всьому закладі розміщений образ свинки: в панно при вході в заклад та основних скульптурах, в фігурках на дроверах, стелажах та стіні, в мозаїці, в розписі по металу та картинах. Також в різноманітті страв є українська кухня. І в декорі є автентичні елементи українських традиційних виробів. Також є декоративний елемент трипільської культури в розписі.
Команда
Юрій Глобчак, Євген Лучик, Юрій Мельота, Анна Жулин












