Львів, Україна
Категорія:
Кафе / Пекарня
4



Юрій Глобчак
Засновник студії Globarch Group
Наш дизайн задля ваших емоцій
Галерея

Про проєкт
У цьому інтер’єрі використовуються природні елементи, тепла палітра кольорів, м’які текстильні матеріали і додаткові деталі, що створюють атмосферу затишку та комфорту.
Місцезнаходження
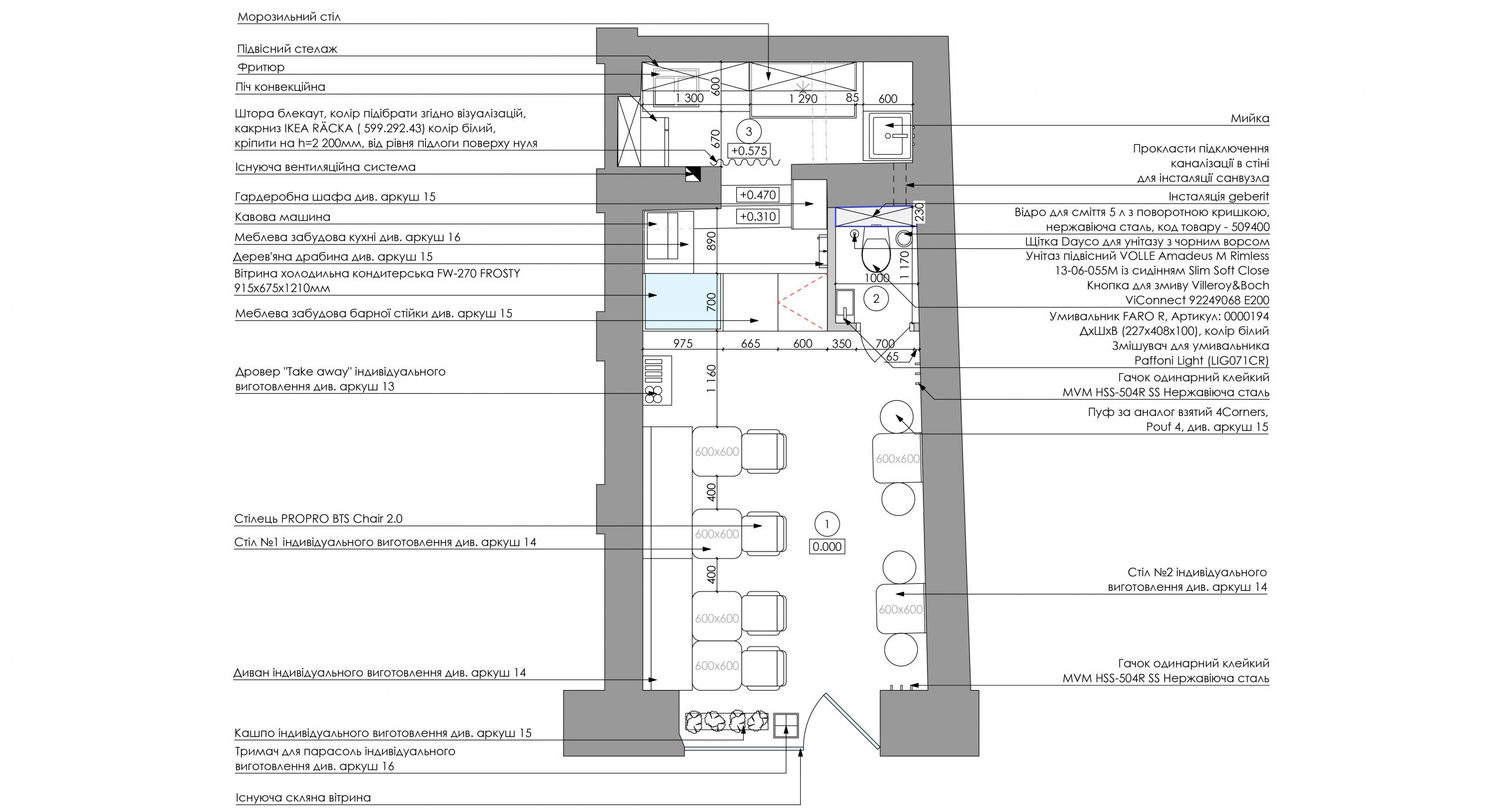
Заклад знаходиться у м. Львів, вулиця С.Бандери, 5а, поряд з Національний університет «Львівська політехніка». Приміщення невелике із панорамним входом на вулицю.
Дизайн
Приміщення має лише 26,09 м², з яких сам зал займає 20.32 м². Загальна кількість посадок – 12 місць.
Пасхалки
Заклад наділений особливою символікою, адже тотемною тваринкою обрана жирафа. В інтер’єрі ви зустрінете принти жирафів і акварельні мотиви. Цією графікою передається ніжність та невагомість, яка асоціюється із пухнастими пампушками.
Команда
Юрій Глобчак, Євген Лучик, Юрій Мельота, Анна Жулин












