Львів, Україна
Категорія:
Ресторан
2
Hamily Group



Юрій Глобчак
Засновник студії Globarch Group
Наш дизайн задля ваших емоцій
Галерея

Про проєкт
Завдяки високій стелі, величезним панорамним вікнам та нестандартним світильникам, все приміщення наповнене великою кількістю світла. Дзеркала на стелі візуально збільшують заклад та створюють видимість всього приміщення.
Основою інтер'єру є дерево, яке було використано у великій кількості при оздобленні залу. Оздоблювальними матеріалами були: елементи з натурального дерева, бетонні панелі та плити, декоративний мох, фотошпалери, всі ці компоненти разом із правильно виставленим та підібраним світлом.
Місцезнаходження
Ця кімната мала великий потенціал завдяки високим стелям, які ми використали, щоб надати їй відчуття масштабу.
Дизайн
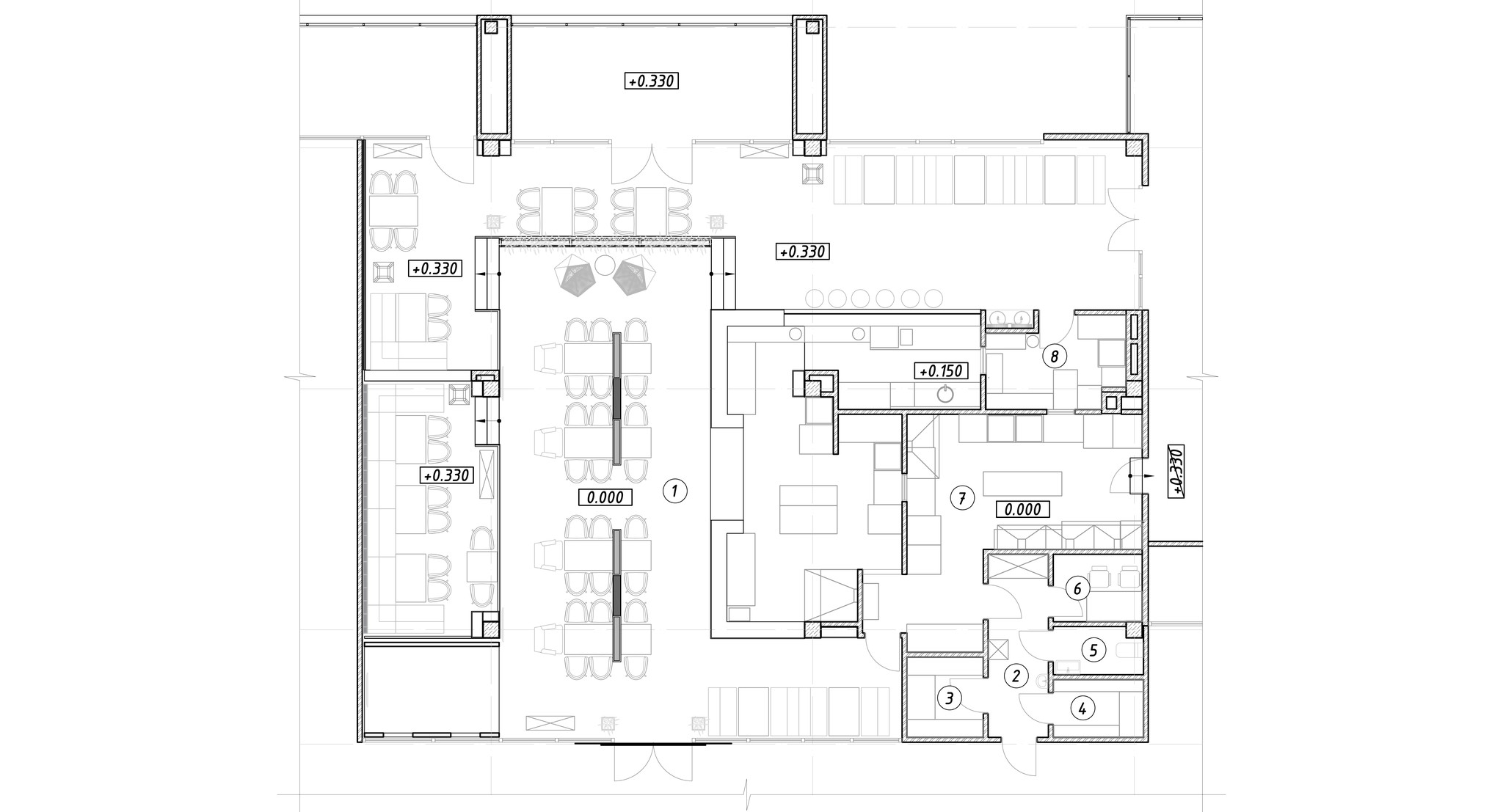
Загальна площа ресторану становить 280,89 м², з яких зал-відкрита кухня займає 227,3 м², а закрита кухня – 26,17 м².
Пасхалки
У кожному ресторані франшизи є певна тварина, яку можна знайти по всьому закладу на м’яких панелях, картинах, вивісках тощо.
Команда
Юрій Глобчак, Євген Лучик










