Львів, Україна
Категорія:
Житло
3



Юрій Глобчак
Засновник студії Globarch Group
Наш дизайн задля ваших емоцій
Галерея

Про проєкт
На фоні класичних мотивів дверей, плінтусів розміщена сучасна мінімалістична кухня, де фішкою стало поєднання глибокого зеленого і кольору пудри. Острів, як і стіна біля робочої зони, виконаний із тераццо. Сучасна люстра із кулястими формами має також свої історичні мотиви. Сучасним рішенням було також відмовитися від верхніх ящиків, що зробило простір робочої зони легким для сприйняття, а загально усе виглядає цілісно.
На фоні нейтральних кольорів акцентом став диван у трендовому складному синьому кольорі та кофейний столик у червоному, кулясті форми люстри це сучасний тренд, який має своє історичне минуле. Узагальнюючи наповнення меблями, усі вони сучасних форм, проте піаніно обрали антикварне у чорному кольорі. Також цікавим декоративним рішенням було поставити телескоп, який слугує відгуком до назви вулиці, а також є цікавим акцентом. Двері – типово класичні у білому кольорі, тому вони не кидаються в очі на фоні світлої стіни.
Місцезнаходження
Локація проєкту знаходиться в історичній будівлі по вулиці Коперніка, місто Львів. Тут висока стеля, типова паркетна дошка і інші деталі. Ми не могли знехтувати цим і взяли до уваги історичне відлуння.
Дизайн
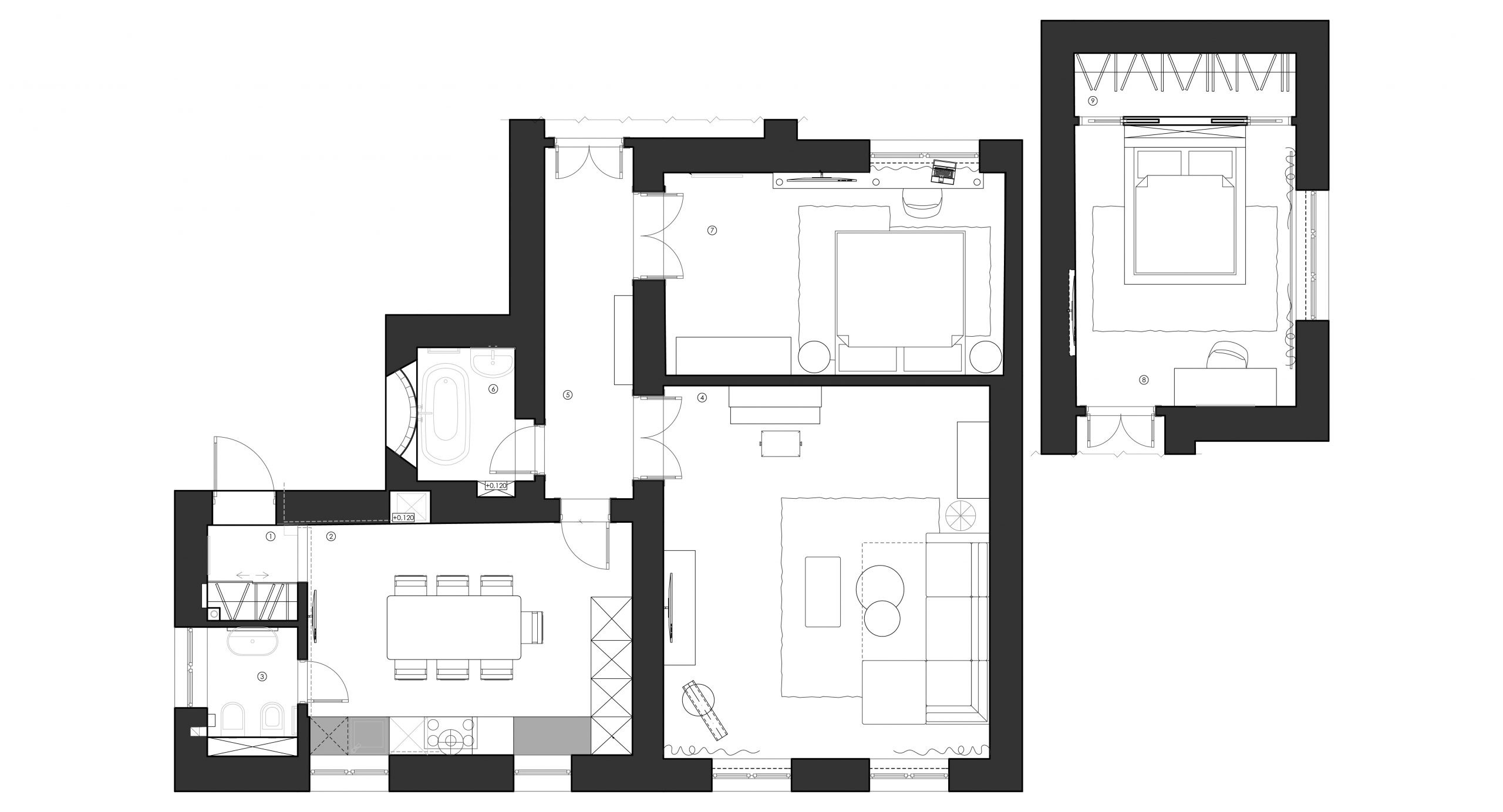
Всі приміщення мають площу 101,2 м², з них передпокій – 2,13 м², кухня – 19 м², гостьовий санвузол – 2,88 м², вітальня – 30 м², коридор – 7,71 м², ванна кімната – 3,7 м², дві спальні – 17 і 15,32 м², гардероб – 3,48 м².
В підтримку стилістики квартири ванна кімната використана все та ж кольорова гама: глибокий синій колір, білий та чорний; люстри у формі кулі; а найбільше нам навіює старовину акцентна стіна з використанням червоної австрійської цегли.
Пасхалки
Поєднання класичних та автентичних елементів із мінімалоізмом.
Команда
Юрій Глобчак, Христина Маїк, Юлія Бобрик











