Львів, Україна
Категорія:
Офіс / Бізнес-центр
5
IT Shuttle



Юрій Глобчак
Засновник студії Globarch Group
Наш дизайн задля ваших емоцій
Галерея

Про проєкт
Ми розробили закриті офіси та one-to-one, а також коворкінг з барною стійкою. У закритих офісах стіни оздоблені ДСП-панелями та білим оракалом, ковролін “Flotex” на підлозі, стеля пофарбована у сірий колір. Додали озеленення, а над робочими столами – лаконічні лінійні світильники індивідуального виготовлення, також передбачили локери для кожного робочого місця. Постарались зробити світлий та комфортний дизайн.
У one-to-one стіни оздоблені білим ДСП панелями та звукоізоляційними панелями, у приміщенні додатково передбачена графітова штора, для візуальної ізоляції.
Місцезнаходження
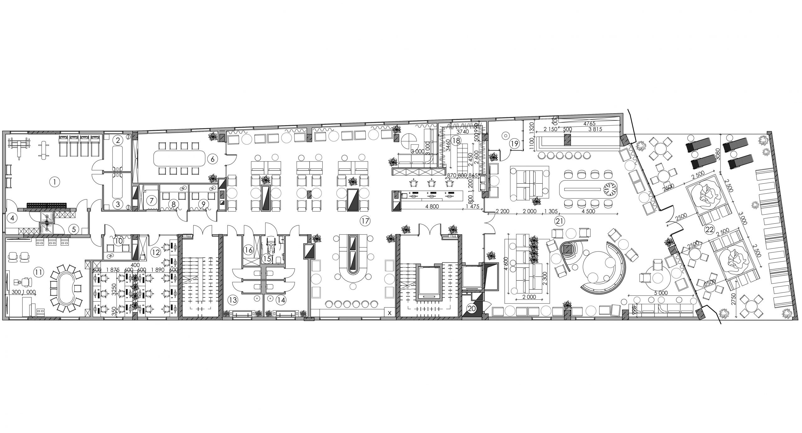
IT shuttle знаходиться у новому центрі на Шевченка і займає весь третій поверх.
Дизайн
Величезний офісний простір із різними типами зонування: спортзал, 2 масажних кабінета, 2 перевдягальні-душові жіноча та чоловіча, кімната для переговорів на 8 людей, дворівневі капсули для сну, три кімнати для переговорів “one to one”, ігрова кімната, офіс на 12 людей, санвузли, зона рецепції та коридор, гардероб, технічне приміщення, бокс для куріння, зал з баром, що разом займає площу 665,54 м². А також є велика тераса, площею 126,39 м²
Пасхалки
Ми вважаємо, що важливо відчувати себе у коворкінгу, як вдома або навіть краще. Тому робимо все для вашого максимального комфорту. Передбачено всі зони, щоб вам не хотілося покидати це відчуття, ніби ви працюєте на Місяці.
Команда
Юрій Глобчак, Євген Лучик, Юрій Мельота, Дмитро Вишневський, Денис Васільєв












