Чернівці, Україна
Категорія:
Ресторан
5
Goyira Group



Юрій Глобчак
Засновник студії Globarch Group
Наш дизайн задля ваших емоцій
Галерея

Про проєкт
Як декор, щоб підкреслити атмосферу в пабі, було обрано історичні фотографії, карбовані етикетки пива та картини в стилі плакатів минулого. Однією з родзинок є люстра, виготовлена з пивних келихів та розміром у 2 поверхи.
У декорі також використані підсвічені стелажі з пивними келихами та пивними пляшками, а також пивні кеги з фірмовим пивом.
Місцезнаходження
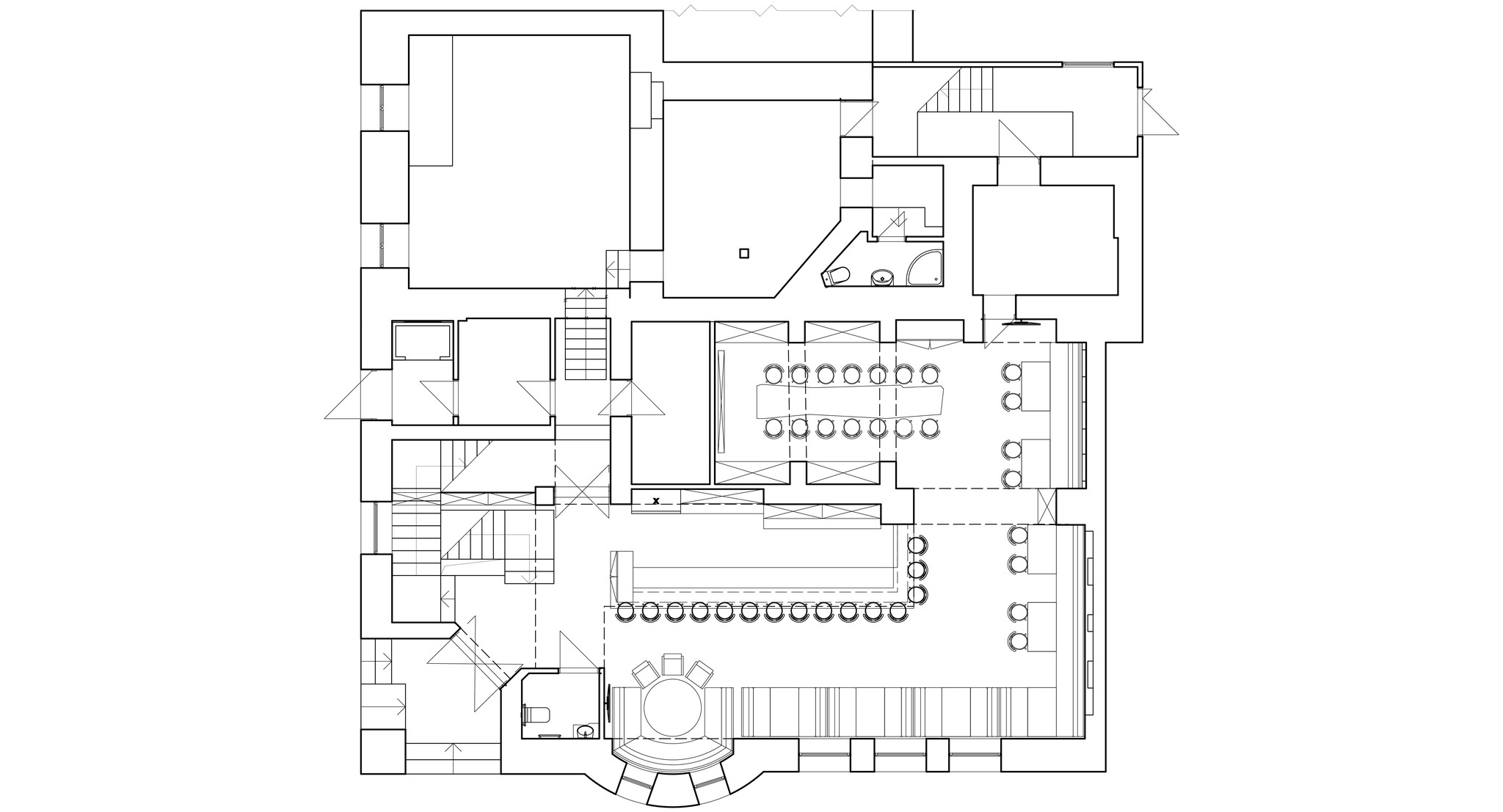
Паб розташований у самому серці міста, де історично був пивний ресторан.
Дизайн
Головне завдання – правильно організувати внутрішній простір, максимально використати зону відпочинку, з’єднати 3 поверхи пабу та окремі кімнати. Була проведена дуже складна реконструкція самої будівлі, щоб втілити все, що ми задумали.
Пасхалки
Атмосфера пабу відчувається в деталях, де кожен елемент переплетений з темою пива.
Команда
Юрій Глобчак, Христина Маїк, Юлія Бобрик, Наталя Фостяк, Анна Жулин












