Львів, Україна
Категорія:
Ресторан
4
Shum Group



Юрій Глобчак
Засновник студії Globarch Group
Наш дизайн задля ваших емоцій
Галерея

Про проєкт
Завдяки дімуванню можливі різні сценарії світла вдень та ввечері. Також на підвальному поверсі більш інтимна атмосфера, ніж на першому, де світло більш яскраве.
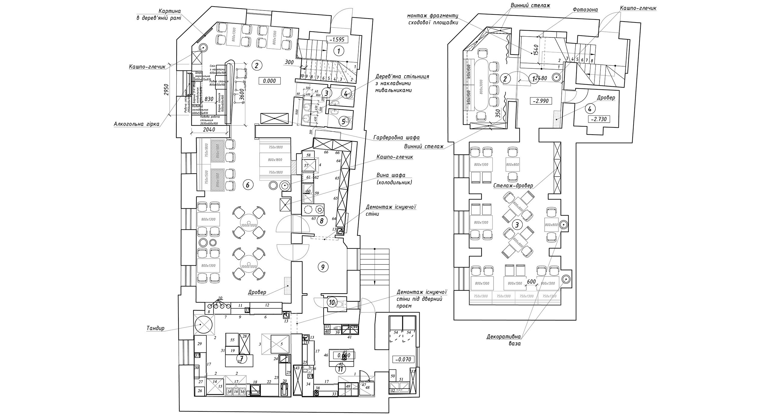
Закрита за скляною перегородкою із темними завісами VIP-кімната знаходиться на підвальному поверсі. Вона містить стіл для великої компанії і латунний стелаж із вином. Якщо глянути вверх, то можна помітити незвичну аморфну люстру із тими ж самими грубими смужками металу та світильниками-тубусами.
На підлозі у ресторані «Грузинський» старий паркет у поєднанні з дрібною мозаїчною плиткою із зображенням гранатів. Стелю, крім основного залу, ми зашили амбарними пошліфованими та полакованими дошками, які в певних місцях плавно переходять на стіни. Також є стіна із грубим смужками металу, які по кольору та формі перегукуються із цими дошками.
Місцезнаходження
Заклад знаходиться в центрі Львова, на вулиці Павла Ковжуна, 2. Протягом багатьох років приміщення будинку виконувало різні функції. Останньою з яких був караоке-бар. Так як в цій кам’яниці 2-ий і 3-ій – це житлові поверхи, то в приміщенні караоке-бару виконалася робота по звукоізоляції. Коли наша команда приступила до демонтажу в приміщенні, ми натрапили на стелю, вкриту всю яєчними лотками, що було популярним бюджетним інструментом акустичної обробки приміщень і використовується досі.
Дизайн
Так як це старий австрійський будинок зі складним приміщенням, було багато довгих демонтажних робіт. Ми також розчистили автентичну цеглу і поєднали її з мінімалістичною декоративною штукатуркою, шпоном під американський горіх. Разом з ними із матеріалів використовується також кварцит, дерево, метал, латунь.
Ще одною з проблем, з якими ми стикнулися – відсутність інсоляції в приміщені і поганий вид з вікна, так як видно лишень сусідній будинок. Нашим рішенням було вставити несправжні дерев’яні ставні, що з одної сторони дало нам теплий атмосферний прийом, а з іншої – вирішило проблеми даного приміщення.
Пасхалки
Нам спало на думку реставрувати «лоткову» стелю в основному залі і зробити її хорошим історичним та звукопоглинаючим доповненням до інтер’єру. Після декількох варіантів вирішення, ми зупинилися на найпростішому, але водночас найкращому способі – пофарбувати її у суцільний темний відтінок, але щоб завдяки гри світла і тіні була читабельною ця неймовірна фактура.
Команда
Юрій Глобчак, Євген Лучик, Катерина Столяр, Анна Жулин











