Львів, Україна
Категорія:
Житло
2



Юрій Глобчак
Засновник студії Globarch Group
Наш дизайн задля ваших емоцій
Галерея

Про проєкт
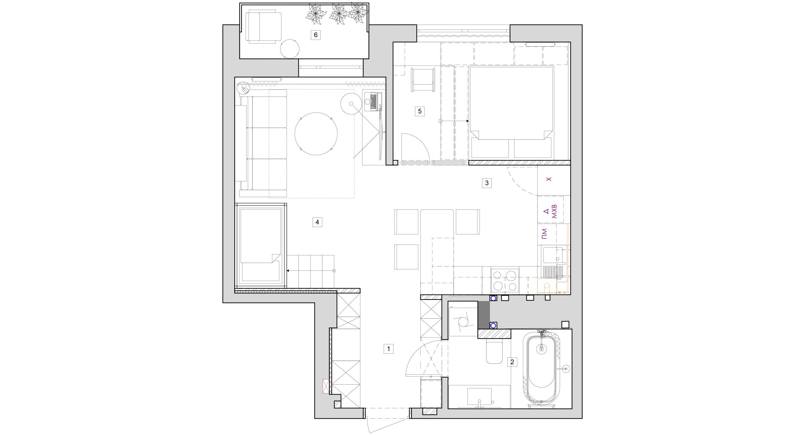
Ми поміняли розташування спальні та вітальні. Через це у кухні не було природнього освітлення. Ми зробили дерев’яні двері з вікнами у спальню у скандинавському стилі.Також потрібно було дуже багато місця для зберігання, тому ми використали меблеву забудову у синьо-зеленому кольорьорі перед входом у сунувзол.
Також від замовника було побажання зробити відкриті полички на кухні. Використали існуючу люстру у класичному скандинавському стилі.
Місцезнаходження
Квартира знаходиться в ЖК “Villa Magnolia”, що у Львові по вулиці Пасічна.
Дизайн
Так як сім’я з дитиною, ми зробили стіни з МДФ-панелями – турбота про дитячу живописну творчість на стінах. Вітальня поєднана з дитячою зоною сну. Тут розмістили спальне місце у вигляді дерев’яного будиночка.
Пасхалки
В замовника було побажання зробити ліжко на подіумі. Тут додатково у сходинках зробили місце для зберігання. На стінах – м’які панелі.
Команда
Юрій Глобчак, Катерина Столяр












