Білогородка, Україна
Категорія:
Житло
2



Юрій Глобчак
Засновник студії Globarch Group
Наш дизайн задля ваших емоцій
Галерея

Про проєкт
Житловий простір для сім’ї із чотирьох осіб: батьки, дочка та кішка. Виконаний в пастельних відтінках та з використанням природних фактур/текстур. Було враховано побажання замовників та запропоновано оптимальні функціональні рішення в плануванні житлових площ.
Використали лаконічне та стильне освітлення українських фірм Imperium Light, Levantin та меблі від Woo Furniture, Nastriy, Staritska Maysternya, 4corners.space, SleepOnnn, які стали хорошим доповненням мінімалістичних форм – основа в цьому інтер’єрі. Також раді вже вкотре застосувати відому всім плитку від 41zero42 в поєднанні з мікробетоном в гостьовому санвузлі та Kerlite + Imola в ванній кімнаті. Фурнітуру обрали лаконічну чорну матову.
Місцезнаходження
Об’єкт знаходиться в Білогородці — селі Бучанського району Київської області.
Дизайн
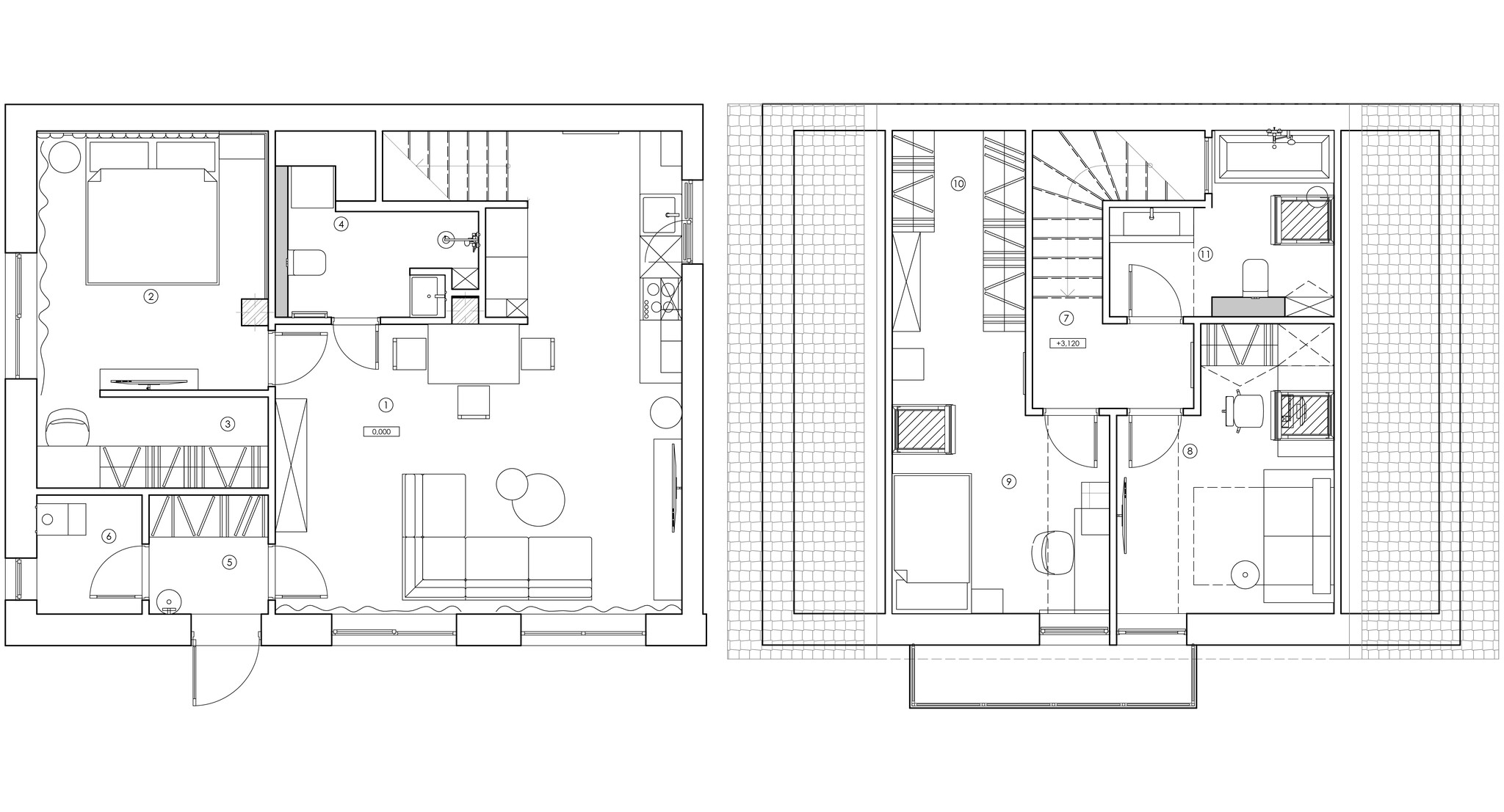
В 100,6 м² ми вмістили все, що було потібне для комфортного життя замовників. Перший поверх займає 59,6 м² і тут є: вітальня-кухня 33,1 м², батьківська спальня 12,16 м², гардероб батьківської спальні 4,29 м², санвузол-пральня 4,60 м², передпокій 2,89 м², котельня 2,55 м². Другий поверх займає 41 м², з них: коридор-сходи 7 м², кабінет-гостьова кімната 11,26 м², дитяча 11,24 м², кладова-гардероб 5,12 м², ванна кімната 6,42 м².
Пасхалки
Сходи були розташовані по центру приміщення і займали багато корисної площі, ми пішли на експеримент і змістили сходи в неексплуатовану зону біля кухні, тим самим під сходами розмістили санвузол і збільшили ефективну і корисну площу всієї будівлі, через це довелося робити багато будівельних змін, на які погодився замовник.
Команда
Юрій Глобчак, Христина Маїк











