Львів, Україна
Категорія:
Клініка
2
Dental Court



Юрій Глобчак
Засновник студії Globarch Group
Наш дизайн задля Ваших емоцій
Галерея

Про проєкт
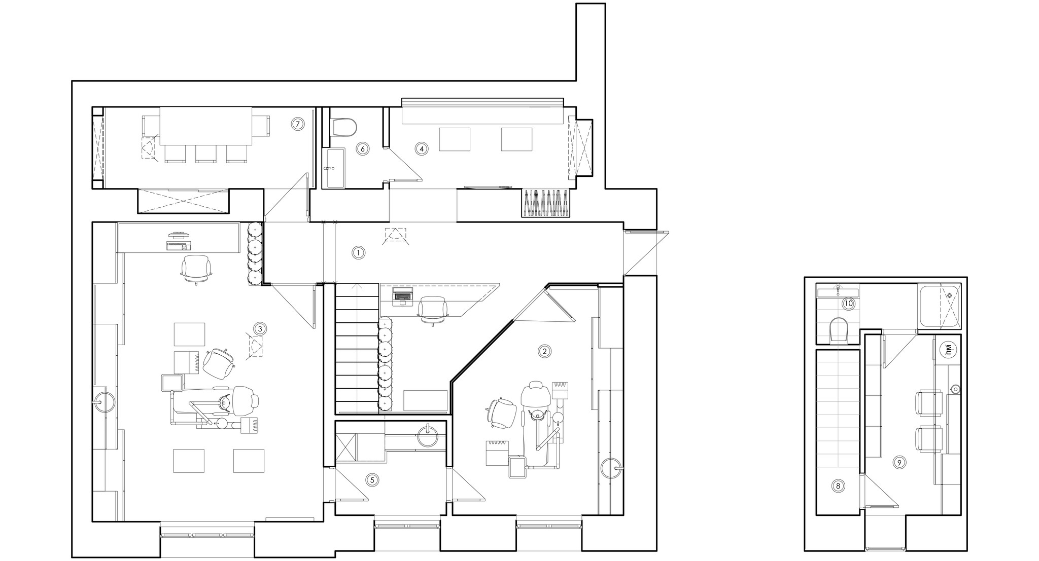
Відразу ж на вході гостей зустрічає стіл адміністратора, оформлення якого складно назвати звичайним і традиційним. Стильна стійка з оригінальним підсвічуванням відокремлює робоче місце реєстратора від відвідувачів.
Дизайн ортодонтичного кабінету викликає багато супутніх питань, пов'язаних із санітарно-гігієнічними нормами, інженерними вимогами, внутрішнім оздобленням та освітленням сформованих зон в інтер'єрі. Необхідно враховувати не тільки ідеї та побажання, але й можливість та доцільність їх майбутньої реалізації, практичність та функціональність кожного елемента кабінету.
Місцезнаходження
Клініка розташована у місті Львів на вулиці Карпінського, 7.
Дизайн
Вирішення різних проблем – сходи в підвал, функціональні зв'язки між кімнатами, організація інженерних мереж, внутрішнє обладнання та загальний напрямок розвитку інтер'єру – це першочергові завдання, які ми поставили перед собою.
Пасхалки
Наша команда продумала кожну деталь, щоб і співробітники, і відвідувачі почувалися затишно та комфортно в цьому інтер'єрі.
Команда
Юрій Глобчак, Христина Маїк












