Львів, Україна
Категорія:
Ресторан
7
Daily Dose



Юрій Глобчак
Засновник студії Globarch Group
Наш дизайн задля ваших емоцій
Галерея

Про проєкт
Наразі “Daily Dose of mmm”, створений нами, є не тільки космічним та технологічним рестораном, а й об’єктом із найбільшою кількістю прихованих “пасхалок” від нашої студії. Багато людей, починаючи від дизайнерів і закінчуючи підрядниками, вклали свою роботу в цей проєкт. Завдяки згуртованій роботі всіх майстрів, ресторан по-справжньому пронизаний футуристичним духом.
Місцезнаходження
Ресторан знаходиться у Львові на вулиці Т.Шевченка, 62 у новій сучасній будівлі “IT Shuttle”. Стилістика і космічна тематика підтримує загальну концепцію всього “IT Shuttle”.
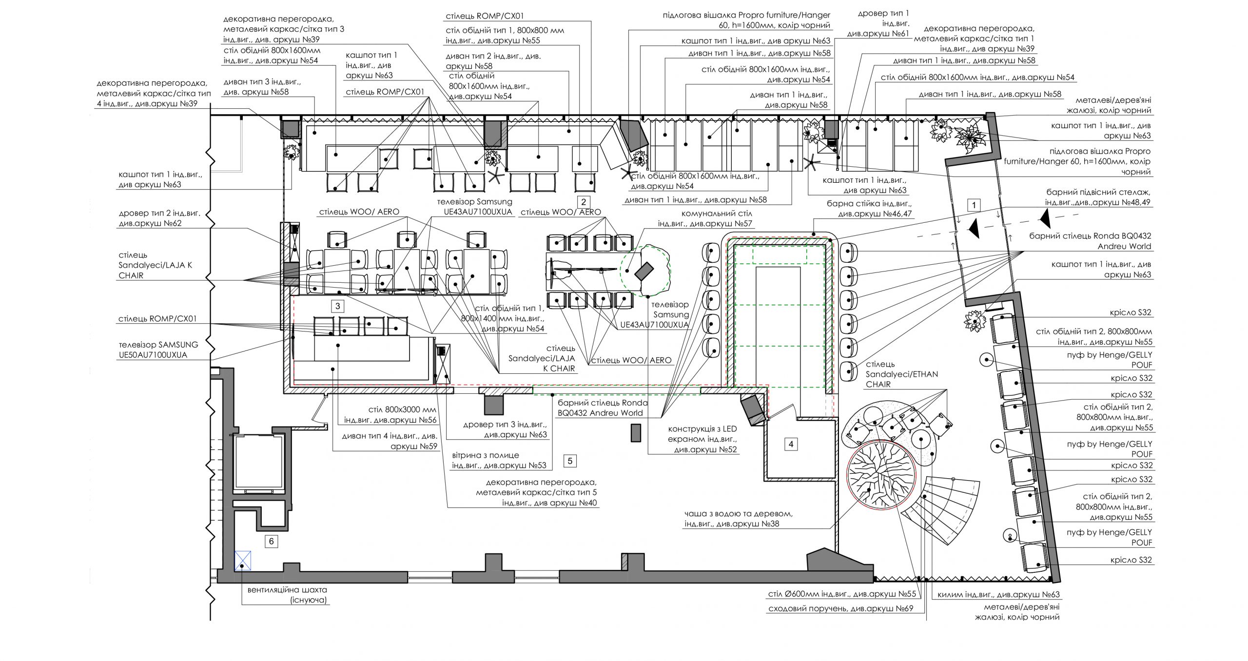
Дизайн
Це великий ресторан, площа першого поверху займає 320,23 м², другий поверх має площу 200,00 м². Акцентом простору є великі монолітні гвинтові сходи, що ведуть на другий поверх. Зовнішній периметр сходів оздоблений дзеркалом, що плавно перетікає в об’єм огородження другого поверху.
Пасхалки
Тут можна роздивитися найбільшу поверхню Місяця та трьохметрового космонавта, який тримає у руках піцу. На підлозі ви знайдете зашифрований текст алфавітом Ауребеш (вигаданий алфавіт, який використовується для подання основної галактичної мови у франшизі «Зоряні війни»).
Команда
Юрій Глобчак, Євген Лучик, Катерина Столяр, Богдан Пришляк, Дмитро Вишневський, Ілона Курцеба, Анна Жулин












