Львів, Україна
Категорія:
Офіс / Бізнес-центр
6
co-working



Юрій Глобчак
Засновник студії Globarch Group
Наш дизайн задля ваших емоцій
Галерея

Про проєкт
На першому поверсі розміщена зона рецепції. Стійка, звісно, ж індивідуального виготовлення. Поверхня під камінь – імітація з гіпсу. Позаду гартоване тоноване скло, де в нішах заховані телевізори. Також позаду знаходяться панелі під дерево (горіх).
І перше, що ви бачите, на 11-ому поверсі – це обідня зона із круглими столами на масивній центральній ніжці, що додає домашнього затишку. Цей функціонально зручний стіл від “Pedralispa”, а тоновані напівпрозорі стільці – “Calligaris”.
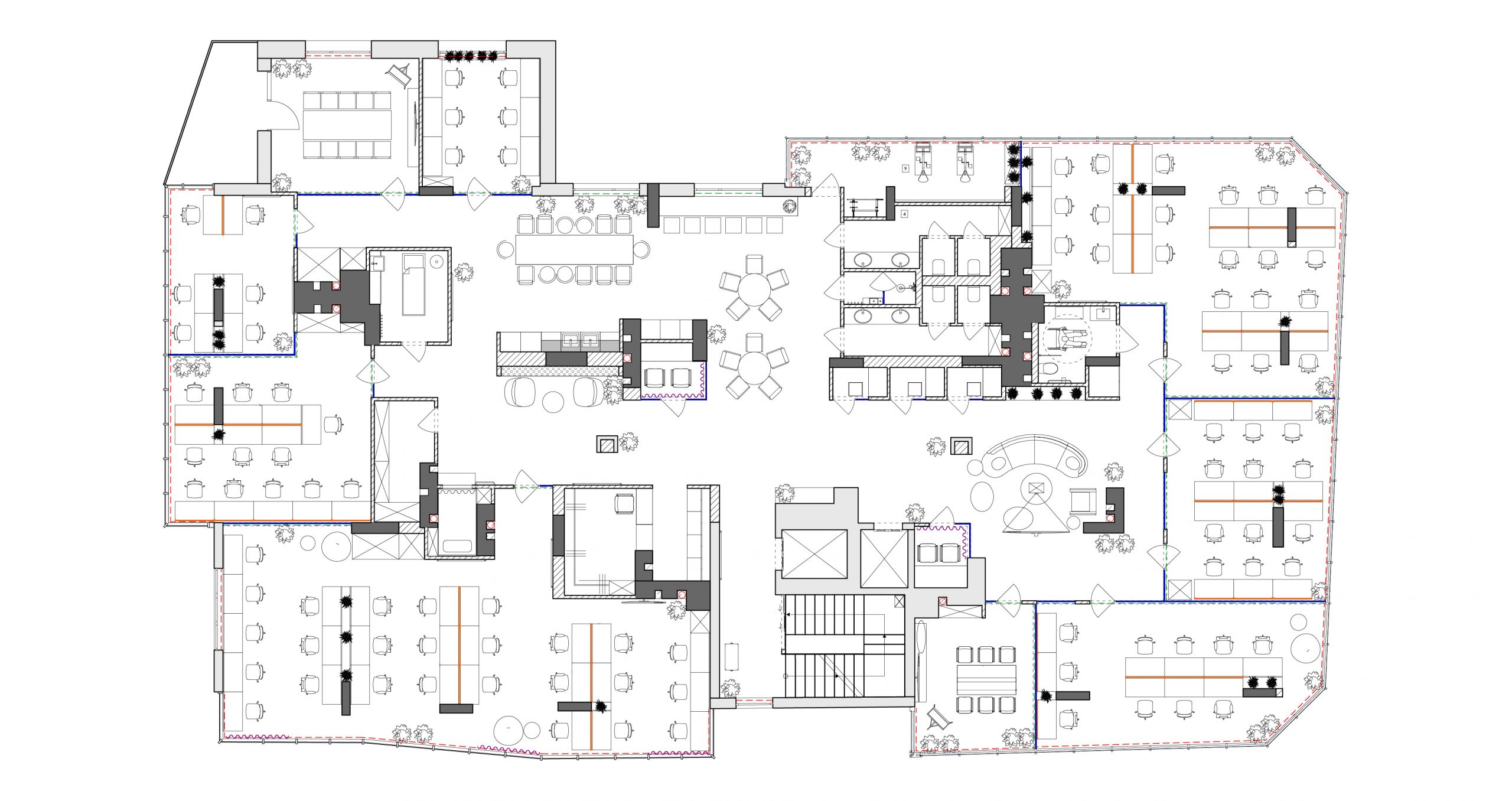
Тепер трохи більше про 12-й поверх. Сам простір поділений на різні зони, найбільша з яких – це відкрита зона, де можна побачити бар з напоями, міні-зони відпочинку з різними диванами та зручними кріслами, великий робочий стіл, який можна використовувати як місце для переговорів.
Також є кілька скайп-кімнат, де ніхто не завадить вам вести ваші онлайн-розмови. Також є закритий офіс, де є 5 окремих робочих місць.
Місцезнаходження
Багатофункціональний коворкінг-центр розташований у місті Львів у житловому комплексі «Виговський».
Дизайн
Це був масштабний проєкт, який займає загальну площу 827,81 м², з яких 1-й поверх займає 33,91 м², 11-й поверх – 590,17 м², 12-й – 203,73 м².
Пасхалки
А який же коворкінг без тераси з неймовірним краєвидом на Львів? Тут зроблено все для того, щоб ви могли зануритися в повну релаксацію, і ми навіть виділили зону для джакузі.
Команда
Юрій Глобчак, Євген Лучик, Катерина Столяр, Богдан Пришляк, Дмитро Вишневський, Юлія Бобрик












