Львів, Україна
Категорія:
Салон / Магазин
3
Blossom



Юрій Глобчак
Засновник студії Globarch Group
Наш дизайн задля ваших емоцій
Галерея

Про проєкт
Тут ми поєднали насичений синій з ніжно-рожевим та білим. Посеред зали була величезна колона, яку оздобили плиткою та бетоном, а також встановили стіл для макіяжу. Усі форми в інтер'єрі повторюють овали: арки, дзеркала, колони, навіть дивани та крісла. Стіни за стійкою рецепції оздоблені гіпсовими панелями.
Тут глибокий синій колір ми поєднали з ніжним рожевим та білим. Посеред залу була величезна колона, яку оздобили плиткою та бетоном,вмонтували столик для макіяжу. Всі форми в інтер’єрі повторюють овали : арки, дзеркала, колони, навіть дивани і крісла. Стіни позаду стійки рецепції оформили гіпсовими панелями.
Це багатофункціональний простір, де є все, що потрібно жінці, щоб підкреслити її красу: одяг, макіяж, перманентний макіяж.
Місцезнаходження
Салон краси розташований на вулиці Кульпарківській, 64а у Львові в житловому комплексі «Парус Парк».
Дизайн
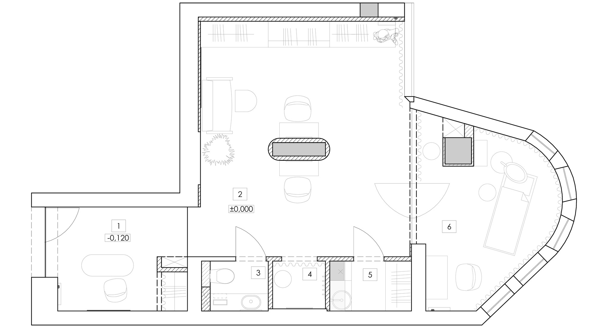
Загальна площа становить 49,52 м², з яких зона рецепції займає 7,41 м², хол – 25,78 м², ванна кімната – 1,78 м², примірочна – 1,35 м², гардеробна з кухнею – 2,18 м², косметологічний кабінет – 11,02 м². Це багатофункціональний простір, де, окрім кабінетів для косметологічних процедур, є також бутік з вибором образів для створення унікального образу.
Пасхалки
Колони не стали перешкодою для створення ідеального простору, ми погралися з ними, щоб вони розчинилися в просторі та стали гарним доповненням. Наприклад, у постійній шафі ми додали дзеркало на колоні.
Команда
Юрій Глобчак, Катерина Столяр, Наталя Фостяк












