Львів, Україна
Категорія:
Клініка
3
Авторська стоматологічна клініка


Юрій Глобчак
Засновник студії Globarch Group
Наш дизайн задля ваших емоцій
Про проєкт
За цей рік ми тісно працювали з компанією Компанія Інспе, що супроводжувала і встановлювала обладнання – взнали багато нюансів щодо підключення та монтажу установок, вимоги щодо роботи клініки в цілому.
Меблі привезли з Італії з натуральної еко-шкіри, усі каркасні елементи (стійка, шафи, полички) виготовлялись по місцю ARIAUkraine.
Місцезнаходження
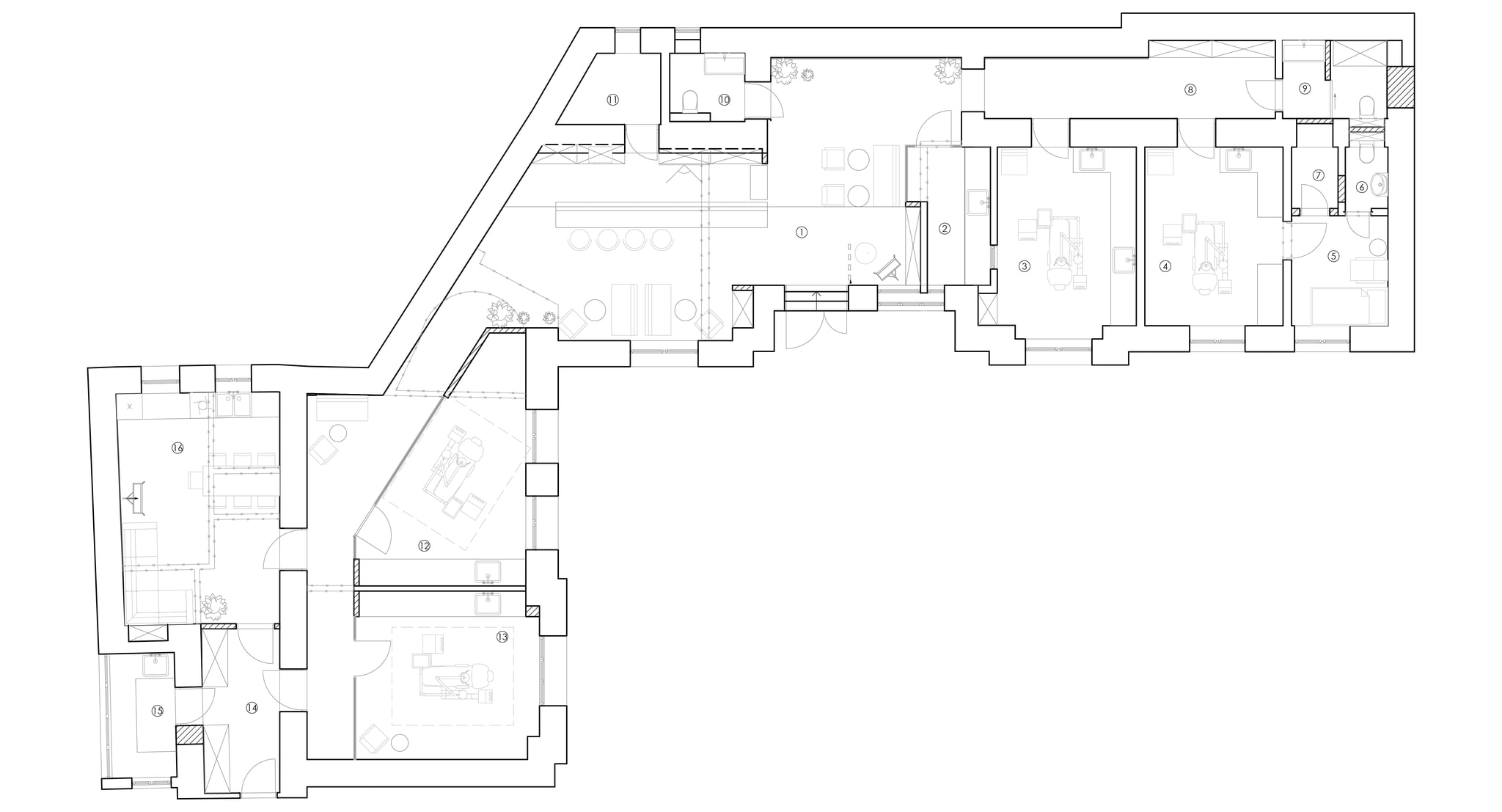
Клініка знаходиться у внутрішньому дворику за адресою місто Львів, вулиця Івана Франка, 32.
Дизайн
Багато прозорих перегородок зберегли нам простір, а запіскоструєні кружальця заховали весь робочий процес зі сторони коридору.
Пасхалки
Клініка працює по принципу «розумного будинку», тому все тут для працівників зрозуміло і на інтуїтивному рівні легко у використанні.
Команда
Юрій Глобчак, Христина Маїк, Юлія Бобрик













