Львів, Україна
Категорія:
Салон / Магазин
3
ART Energo



Юрій Глобчак
Засновник студії Globarch Group
Наш дизайн задля ваших емоцій
Галерея

Про проєкт
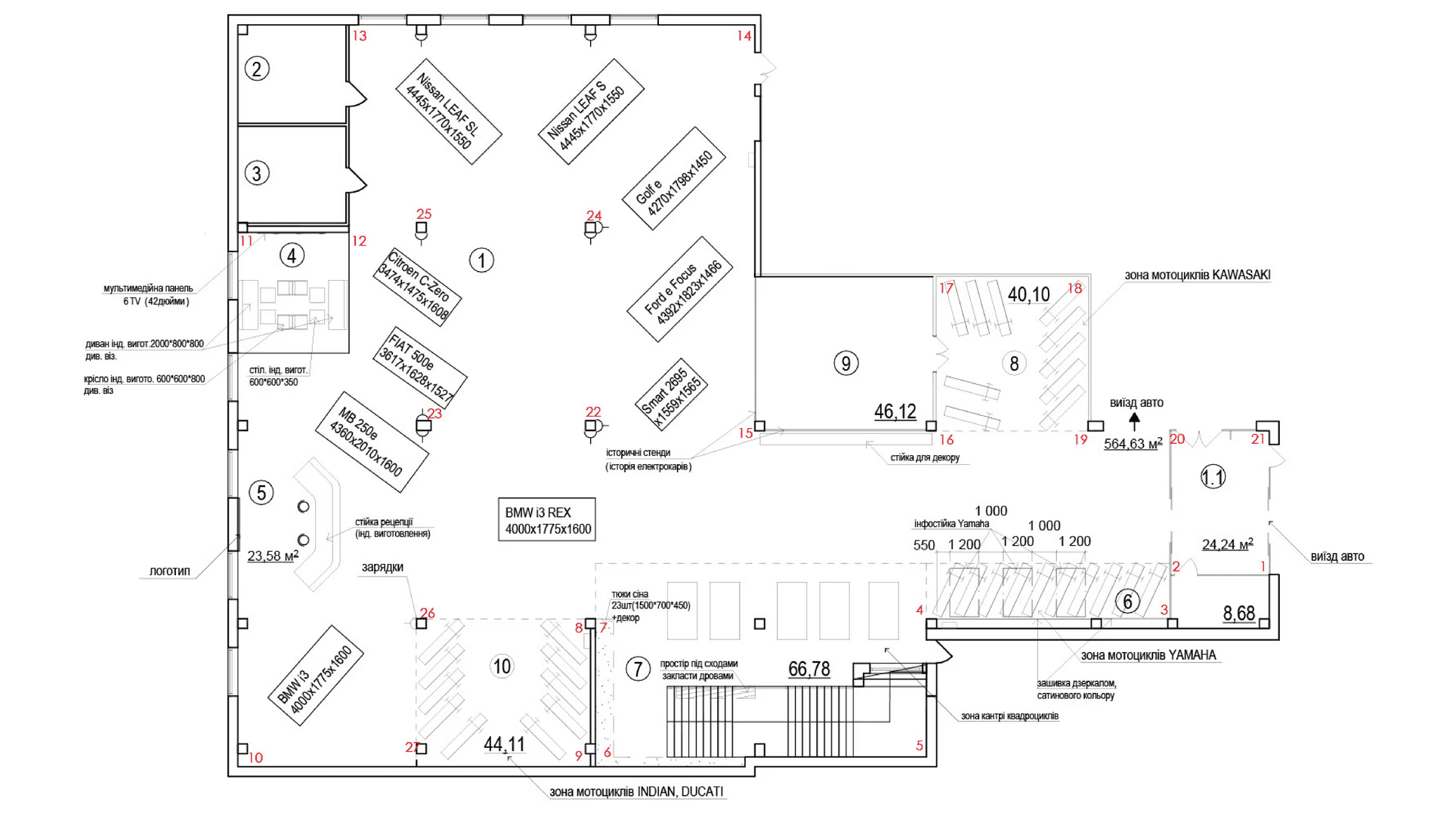
Найбільш важливим для студії та замовника була функціональна сторона. Ця торгова марка продає різні види продукції, тому дуже складно ставити все послідовно.
Проєктування було завершено у стислі терміни та з фіксованим бюджетом. Незважаючи на це, вдалося досягти поставлених цілей, багато цікавих ідей на тлі високотехнологічного транспорту.
Місцезнаходження
Цей бренд продає різні види продукції, тому дуже важко виставити все узгоджено.
Дизайн
Меблі розташовані максимально оптимально та ефективно: у залі багато вільного простору, легко орієнтуватися, але водночас завжди можна знайти місце для відпочинку чи консультації.
Пасхалки
Дизайн було виконано у стислі терміни та з фіксованим бюджетом. Незважаючи на це, вдалося досягти поставлених цілей, багато цікавих ідей на тлі високотехнологічного транспорту.
Команда
Юрій Глобчак, Роман Лопушанський










