Німеччина
Категорія:
Житло
3



Юрій Глобчак
Засновник студії Globarch Group
Наш дизайн задля ваших емоцій
Галерея

Про проєкт
І перше приміщення – ця чудова кухня з теракотовим фасадом. Ми використали тераццо, яке гармонійно вписалося в цю кольорову гаму. Для практичності на кухні використані ще шпоновані дерев’яні панелі, щоб стіна не оббивалась.
Тільки гляньте на це поєднання ніжного зеленого пофарбування, світлого дерева і білої прямокутної плитки у ванній. Підлогу зробили під мармур. Використали зручну велику душову кабіну у металі замість ванни. Вписали овальне дзеркало у білій рамці над раковиною. Обрали акцентент у глибокому червоному на фоні нейтральних кольорів у спальній. Місцем для зберігання одягу слугуватиме відкрита шафа у металевому каркасі.
Поряд з великим просторим ліжком функціонально розміщені розетки, стильні металеві бра та столики. Стіни декорували картинами з абстракцією.
Місцезнаходження
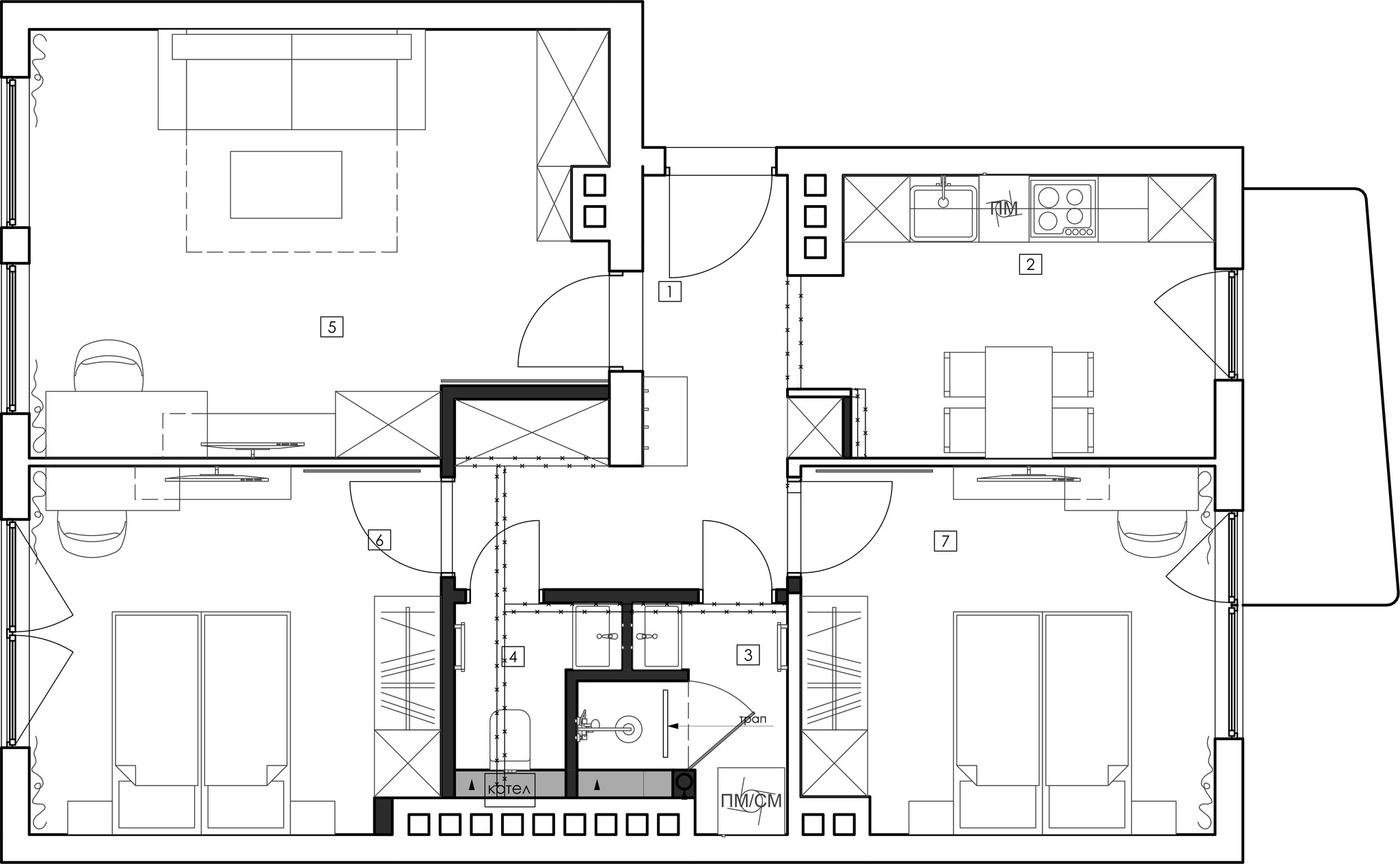
Квартира знаходиться у Німеччині. Апартаменти готельного типу під здачу.
Дизайн
Основним завданням було зробити дизайн максимально ергономічним і функціональним.
Пасхалки
Так як квартира під здачу, тому хотіли її зробити максимально зручною та сучасною для різного типу людей. Кольорова гама з одного боку спокійна, проте на її фоні використані яскраві акценти у меблях та деталях.
Команда
Юрій Глобчак, Христина Маїк, Юлія Бобрик












