Львів, Україна
Категорія:
Житло
2



Юрій Глобчак
Засновник студії Globarch Group
Наш дизайн задля ваших емоцій
Галерея
Про проєкт
Світла простора квартира із недорогими, проте дизайнерськими рішенням. Тут практично всюди пофарбування у поєднанні з деревом. У дитячих кімнатах використали додаткові акцентні кольори зелений та синій. Також одним з побажань замовника було зробити велику кількість місць для зберігання.
Місцезнаходження
Квартира знаходиться в новобудові у селі Сокільники, що поблизу міста Львів.
Дизайн
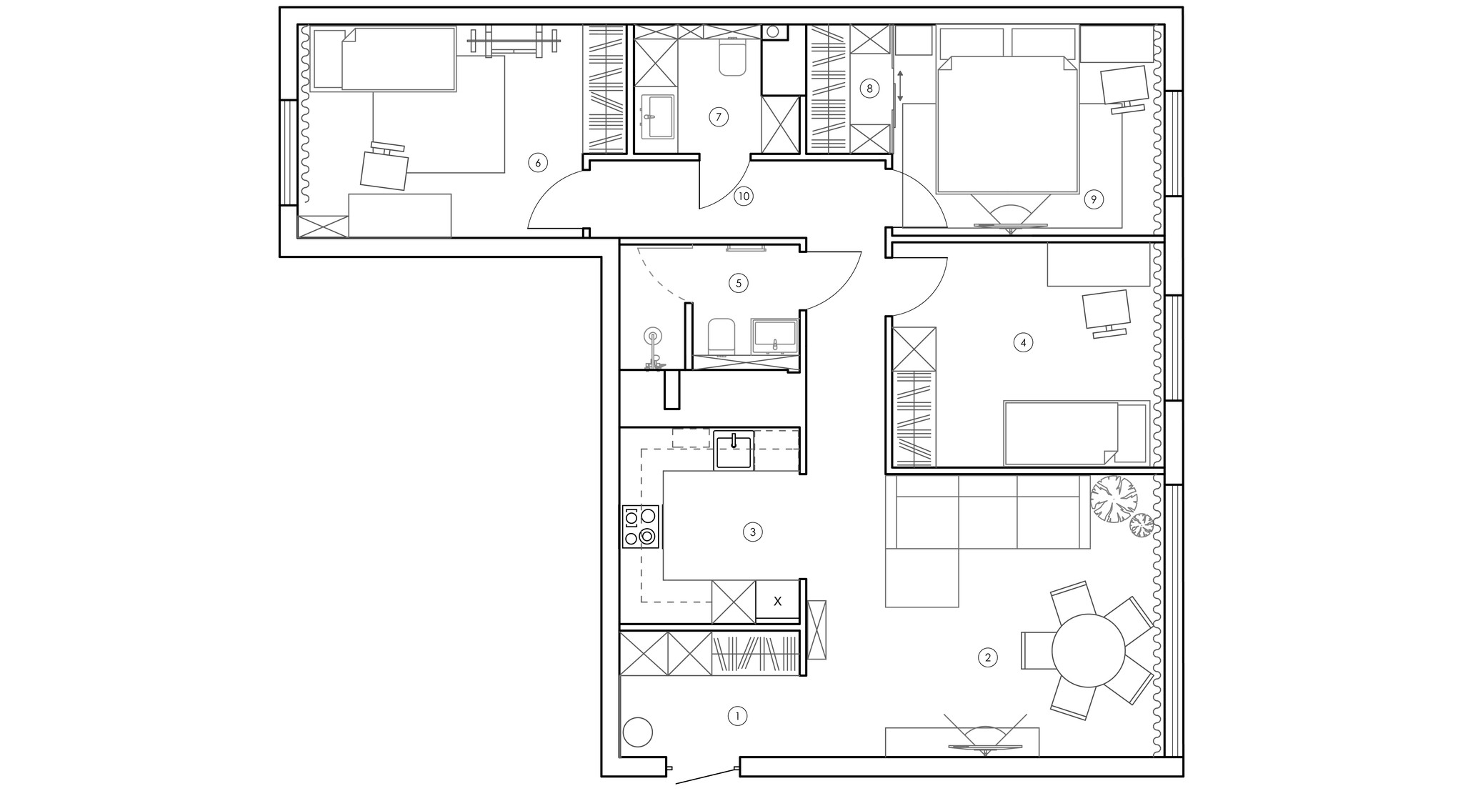
Загальна площа квартири займає 82,16 м², що в свою чергу включає коридор (3,07 м²), вітальню (18,96 м²), кухню (8,14 м²), дві дитячі (11,69 м² і 10,33 м²), два санвузла (4,23 м² і 3,78 м²), гардероб (2,41 м²), спальню (11,83 м²) і ще один коридор (7,72 м²).
Пасхалки
Основним побажання замовника було максимально використати існуюче планування без додаткового демонтажу.
Команда
Юрій Глобчак, Наталя Фостяк












